Создание чертежа угловой кухни — важный этап в планировании функционального и эстетичного пространства. Угловые кухни эффективно используют площадь, особенно в небольших помещениях, и обеспечивают удобство в работе. В статье рассмотрим ключевые аспекты проектирования угловой мебели, правила измерений, размещения техники и розеток, а также пошаговую инструкцию по созданию чертежа. Эти знания помогут спроектировать кухню, соответствующую вашим потребностям и стилю жизни.
Особенности самостоятельного проектирования
Для начала, при разработке проекта кухонного гарнитура своими руками необходимо учитывать общую площадь помещения, расположение коммуникаций, проемов и другие индивидуальные особенности. Рекомендуется создать простой план кухни на бумаге, где будут указаны все размеры. На основе этого плана составляется чертеж всей мебели, после чего следует рассмотреть способ установки техники с точными габаритами.
После составления основного плана важно подобрать и рассчитать другие ключевые параметры гарнитура:
- длину, ширину и толщину столешницы;
- размеры шкафчиков для нижнего и верхнего ярусов. Стандартные размеры нижних шкафов — до 90 см в высоту и до 50 см в глубину. Настенные шкафы, как правило, менее глубокие, оптимальная глубина составляет 30–40 см;
- нижние тумбы закрываются столешницей, которая должна быть шире на 4–5 см, а сзади оставляется запас около 10 см для коммуникаций;
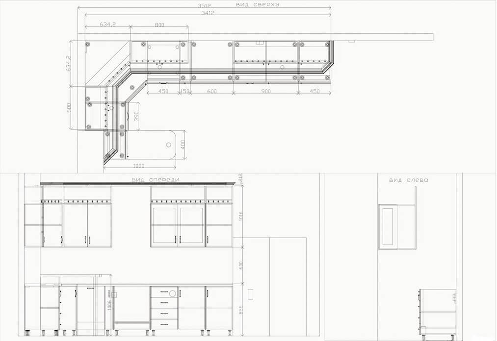
- ширина гарнитура определяется размерами кухни и варьируется от 30 до 100 см, стандартное значение — 80–90 см. Угловые шкафы обычно имеют ширину около 60 см.
После создания чертежа можно решить, подойдет ли стандартная модель мебели или потребуется изготовление нестандартной конструкции. Второй вариант актуален в следующих случаях:
- наличие ниш;
- выступы;
- необычное расположение коммуникаций, которое не позволяет установить стандартную модульную мебель;
- розетки, к которым нужен свободный доступ.
Также важны индивидуальные предпочтения владельцев квартиры.
Любые ниши или выступы можно обыграть, изменяя глубину шкафа, которая будет больше или меньше. Для розеток можно вырезать отверстия или вмонтировать их в столешницу. При создании чертежа необходимо придерживаться основных правил:
- точно указывать расположение коммуникаций, розеток и неровностей;
- правильно расставлять технику, указывая, будет ли она встроенной;
- обозначить на чертеже все стандартные кухонные секции;
- в конце выделить элементы с необычной формой или размерами.
Для упрощения процесса рекомендуется использовать готовые эскизы, на которых указаны размеры, детальное описание каждой секции и общая площадь кухни.
Создание чертежа угловой кухни с размерами своими руками требует внимательного подхода и тщательной подготовки. Эксперты рекомендуют начать с измерения пространства, где будет располагаться кухня. Важно учесть не только размеры стен, но и расположение окон, дверей и коммуникаций. После этого следует выбрать стиль и функциональные зоны, такие как рабочая поверхность, зона хранения и обеденная зона.
При составлении чертежа стоит использовать графическую бумагу или специальные программы для дизайна интерьеров, что позволит более точно визуализировать проект. Также полезно обозначить размеры мебели и техники, чтобы избежать ошибок при покупке. Важно помнить, что удобство и эргономика должны быть в приоритете, поэтому стоит учитывать расстояния между рабочими зонами. В конечном итоге, качественно выполненный чертеж станет основой для успешной реализации проекта угловой кухни.

Кухонные секции
Для кухни мебель делается из нескольких секций:
- верхний ярус — шкафы, которые монтируются к стене, их размеры и форма зависят от общей площади, высота колеблется в диапазоне 30–100 см, а глубина зависит от размера посудной сушки. Оптимальный размер — около 30 см;
- нижний ярус — размеры подбираются в зависимости от роста хозяйки. Стандартная высота тумбочек — 85 см. Для нестандартных размеров оптимально пользоваться встроенной техникой. Глубина не менее 50 см, чаще всего берется 60 см;
- отдельные элементы — фурнитура, кухонная вытяжка, от которых зависит ширина верхнего яруса. Расстояние от плиты до вытяжки должно быть от 70 см.
Основной ориентир для высоты навесной мебели — высота окна.
| Этап чертежа | Описание действия | Необходимые инструменты и материалы |
|---|---|---|
| 1. Замеры помещения | Измерьте длину стен, высоту потолка, расположение окон, дверей, розеток, выключателей, труб водоснабжения и канализации. Учтите выступы и ниши. | Рулетка, карандаш, блокнот, лазерный дальномер (опционально) |
| 2. Определение расположения основных элементов | Разметьте на плане мойку, плиту (варочную панель), холодильник. Учитывайте «правило рабочего треугольника» для удобства. | Карандаш, ластик, бумага в клетку или миллиметровка |
| 3. Разработка компоновки модулей | Нарисуйте расположение нижних и верхних шкафов, пеналов. Определите их размеры (ширина, глубина, высота). Учтите расстояние между элементами. | Линейка, угольник, циркуль (для скругленных элементов), шаблоны (если есть) |
| 4. Детализация и размеры | Проставьте точные размеры каждого модуля, расстояния между ними, высоту столешницы, расположение полок внутри шкафов. Укажите размеры бытовой техники. | Тонкий карандаш, измерительные приборы, справочники по стандартным размерам мебели |
| 5. Разметка коммуникаций | Отметьте на чертеже точное расположение розеток, выключателей, точек подключения воды и канализации, вентиляционных отверстий. | Цветные карандаши или маркеры для выделения |
| 6. Дополнительные элементы | Включите в чертеж вытяжку, подсветку, декоративные элементы, если они планируются. Укажите их размеры и расположение. | Каталоги производителей, образцы материалов |
| 7. Проверка и корректировка | Внимательно проверьте все размеры, убедитесь в отсутствии конфликтов между элементами. Представьте, как будет использоваться кухня. | Собственное воображение, консультация с опытным мастером (опционально) |
Интересные факты
Вот несколько интересных фактов о создании чертежа угловой кухни с размерами своими руками:
-
Принцип «рабочего треугольника»: При проектировании угловой кухни важно учитывать принцип рабочего треугольника, который включает в себя три ключевых элемента: плиту, раковину и холодильник. Оптимальное расстояние между ними должно составлять от 1,2 до 2,7 метров, чтобы обеспечить удобство и эффективность при готовке.
-
Использование масштабирования: При создании чертежа кухни своими руками полезно использовать масштабирование. Например, если вы рисуете в масштабе 1:20, то 1 см на чертеже будет соответствовать 20 см в реальности. Это позволяет более точно планировать пространство и размещение мебели.
-
Возможности программного обеспечения: Существуют специальные программы и приложения для проектирования кухонь, которые позволяют создавать 3D-модели и визуализировать пространство. Это может значительно упростить процесс планирования и помочь избежать ошибок при измерениях и размещении элементов.

Создание чертежа угловой кухни
Начинать создание чертежа следует с напольных тумб, а именно — с углового шкафа. Исходя из этой отправной точки, можно продолжать рисовать остальные элементы:
- встроенную технику или гарнитур, в который она будет размещена;
- кухонную мебель с типовыми размерами;
- нестандартные компоненты.
Все элементы чертежа переносятся на лист после тщательных измерений и расчетов. На бумаге необходимо указать все цифровые обозначения, делая это без ошибок. Первая точка чертежа — угловой шкаф, который может быть как простым, так и трапециевидным.
Этот элемент часто используется для установки мойки, а по бокам размещаются стиральная и посудомоечная машины или духовой шкаф. Готовые чертежи с детализацией значительно облегчают процесс работы, достаточно внести индивидуальные изменения.
Размеры и особенности шкафчиков
На любом чертеже с кухонными шкафчиками указывают важные детали, которые помогают рассчитать размеры. По плану создается раскрой для определения будущих расходов на материалы. Точные данные упрощают этап сборки. Деталировку лучше проводить в табличном виде, указывая:
- все элементы шкафов, от мелких до больших;
- количество каждой детали;
- размеры с учетом особенностей кухни.
Примерная таблица выглядит следующим образом:
В табличную часть вносится размер каждой детали в мм. Расчеты следует делать, учитывая толщину листов, а значит, с материалом для фасада надо заранее определиться.
Составляющие угловой тумбы без сушки:
Вертикальная часть дает нужную жесткость, а посередине горизонтальной полки делают специальную выемку для нее. Аналогичным образом создаются остальные таблицы для шкафа под вытяжку, посуду или мойку.
В мебели под вытяжку нужно делать отверстие под вентиляционную трубу. Стандартные гофры производят с диаметром 11–15 см. Нижняя полочка будет подниматься по высоте самой техники. Тумбы или шкафы для посуды ставятся на горизонтальные фасады, которые открываются при помощи подъемников.
Гарнитур с угловой мойкой имеют недостаток — пространство под ней используется не полностью, и доступ к крайним точкам усложнен. Дополнительно на чертеже обозначают выдвижные ящики и фурнитуру для них. Такие детали должны легко выдвигаться, независимо от формы или веса.
Для выдвижного элемента нужно купить направляющие, они монтируются с обеих сторон, поэтому в плане нужно указать правильно высчитанную ширину за вычетом двойной суммы толщины механизма и боковины. Плотное закрывание возможно при направляющей, укороченной от глубины всей тумбы на 5 и более миллиметров.
Для правильной реализации угловой кухни надо понимать основные параметры мебели:
- высота от пола до верхней поверхности — 180–250 см, при наличии газовой колонки гарнитур для нее будет самой высокой точкой;
- глубина нижних тумб — 45–50 см;
- глубина верхних шкафов — 30–40 см;
- ширина фасада — от 30–40 см;
- толщина столешницы — 2–4 см, лучше для кухонь использовать толстое полотно, особенно под мойку.
Дизайнеры советуют создавать угловую кухню на свое усмотрение, поскольку в перечне представлены стандартные значения, но они не всегда будут удобными.

Правильные замеры
От точности измерений зависит качество кухонного гарнитура и его размещение в помещении. Для корректного выполнения этой задачи необходимо определить периметр кухни:
- вдоль плинтусов;
- на уровне рабочей поверхности, примерно 75–95 см от пола;
- по росту жильцов.
Также важно проверить высоту кухни. Измерения следует проводить в разных точках, так как пол или потолок могут быть неровными, что повлияет на установку гарнитура. Все расстояния до коммуникаций, розеток и проемов следует замерять из одного угла.
При создании чертежа самостоятельно или корректировке готовых проектов стоит обратить внимание на зазор вдоль стены. Он необходим для обеспечения свободного пространства около 5 см при установке мебели и предотвращения серьезных переделок.
Если стены имеют кривизну, дополнительный зазор позволит регулировать положение шкафчиков, выравнивая их, а оставшееся пространство закроется мебельным плинтусом. Рекомендуется устанавливать технику с минимальным расстоянием 40 см между устройствами.
Самостоятельное создание чертежа для угловой или другой кухни имеет множество преимуществ, главным из которых является экономия средств на проектировании. Потратив немного времени на изучение основ и усилия на разработку плана, вы сможете создать стильную кухню с максимально удобным расположением гарнитура.
Современные программы позволяют легко создать эскиз и чертеж в онлайн-формате. Среди наиболее популярных приложений для проектирования кухонного гарнитура можно выделить:
- PRO-100 — удобный и интуитивно понятный интерфейс;
- KitchenDraw;
- К3-Мебель;
- Базис-Конструктор-Мебельщик;
- Woody.
Эти редакторы помогают значительно сократить время на проектирование и рисование линий гарнитура. Основные преимущества эскизов, созданных в специализированных программах, заключаются в возможности получения 3D-визуализации кухни. Пользователь может выбрать цветовую палитру и поэкспериментировать с расстановкой шкафчиков. Для успешного выполнения работы достаточно знать точные размеры и особенности конкретной кухни.
Размещение техники и розеток
Правильное размещение бытовой техники — это ключевой момент в организации кухни. Важно следовать нескольким основным рекомендациям:
- Холодильник следует устанавливать на расстоянии от плиты, чтобы избежать его быстрого выхода из строя;
- Плиту и мойку лучше располагать на расстоянии не менее 50 см друг от друга. Это поможет избежать попадания брызг на плиту или электрические розетки во время мытья посуды;
- Стиральную и посудомоечную машины желательно размещать рядом с мойкой для удобства подключения к водопроводу и канализации;
- Встраиваемую вытяжку необходимо устанавливать в шкаф над плитой;
- Сушка для посуды устанавливается над раковиной.
Чтобы избежать использования удлинителей, важно заранее спланировать расположение электрических розеток. На кухне требуется множество выходов для подключения различных электроприборов, так как почти в каждой зоне используются электрические устройства. При угловом расположении мебели розетки следует устанавливать на разных стенах, в фартуке или на столешнице.
Встроенная техника позволяет скрыть розетки за тумбами или шкафчиками. Их высота от пола не должна превышать 60 см, а доступ к ним должен быть легким и свободным. В стенках кухонного гарнитура необходимо вырезать отверстия для розеток, при этом расстояние от них до самой техники должно составлять не менее 1 метра. Это связано с требованиями безопасности.
Вытяжка на кухне — это стационарное устройство, поэтому доступ к электрической сети должен быть немного выше уровня мебели, примерно на 5 см. Также важно учесть место для вентиляционной гофры, чтобы обеспечить свободный доступ и избежать препятствий. Для встроенной вытяжки лучше всего установить розетку внутри шкафчика на боковой стенке.
Если на кухне много дополнительных переносных приборов, рекомендуется установить как минимум 3 свободные розетки. Их лучше всего размещать в удобных местах, таких как фартук или столешница.
Подключение осветительных приборов осуществляется выше уровня кухонного гарнитура. Удобно использовать выдвижные блоки, которые можно разместить внутри шкафов. Установка розеток запрещена:
- над раковиной;
- над варочной поверхностью;
- на стенках шкафчиков с выдвижными ящиками;
- за встроенной техникой.
На чертежах доступ к электрической сети обозначается схематически, в виде двух точек. Все типы подключений делятся на открытые, закрытые и с выключателем.
При капитальном ремонте угловых кухонь проекты проводки часто не разрабатываются. Многие владельцы не хотят тратить дополнительные средства на эту работу, но в результате это может привести к повреждению отделки стен, особенно фартука, во время монтажа. О размещении розеток стоит задуматься заранее, учитывая примерное или точное количество приборов, и добавить 2–3 свободные розетки для удобства.
Советы по обустройству Г-образной кухни
Советы дизайнеров и других специалистов помогут сделать правильные чертежи, учитывая особенности Г-образной мебели:
- нужно максимально задействовать угол. Часто в задней части угловых шкафов место не используется по причине сложного доступа. Для этого лучше применять многофункциональную фурнитуру в виде выдвижных корзин, этажерок или каруселей в несколько этажей для хранения;
- можно сделать монтаж раковины или плиты в угол. Такое решение очень удобно, но надо использовать трапециевидный шкаф — он идеально подойдет. Раковину лучше покупать с крыльями врезного вида, а над ней ставить сушку для посуды;
- сужение одной стороны мебели полезно для экономии места. На небольшой кухне лучше делать одну боковину под стандартную тумбу на 60 см. Особенно удобен вариант для узкого прохода в помещение;
- проход можно освободить при помощи скошенного угла тумбы. Вариант подойдет для очень малых или узких комнат, поэтому боковую часть делают скошенной для свободного доступа;
- лучше устанавливать как можно меньше навесных шкафов. Это решение визуально сделает мебель менее громоздкой и облегчит небольшое помещение. Достаточно просто убрать на одной стене шкафы, заменяя их полками. Для хранения подойдет многоярусная конструкция, встроенные в цоколь ящики, блок на одной стенке из шкафа-пенала или монтаж гарнитура до потолка;
- использование подоконника может стать хорошим лайфхаком для очень маленькой площади. Он станет частью Г-образной мебели и будет экономить место. Под столешницей удобно делать тумбы, оконный проем можно соединить с рабочей частью, но необходимо продумать отверстия для отвода тепла от радиатора под окном. Подоконник получится использовать в качестве обеденного стола или барной стойки;
- обеспечить большую вместительность удается блоком из пеналов. На одной стороне гарнитура делаются подобные шкафы, в которых удается хранить много кухонного инвентаря. Дополнительно в них встраивается техника;
- желательно использовать островной стол для большой площади. Г-образная мебель на просторных кухнях отлично дополняется островком посередине. Это не просто красиво, но и функционально;
- в кухне-студии лучше делать угловую мебель не вдоль стен, а полуостровом, чтобы обеспечить зонирование пространства.
После создания эскиза, подбора фасадов, определения расположения приборов и розеток можно заказать мебель. В дальнейшем модули нужно собрать самостоятельно по инструкции или поручить дело профессионалам.
Кухню мечты спроектировать самостоятельно довольно просто, работа требует времени, но экономит деньги. Достаточно знать особенности, посмотреть фото готовых вариантов и сделать план с учетом индивидуальных особенностей помещения.
Выбор материалов и отделки
При создании чертежа угловой кухни важно учитывать не только функциональность, но и эстетические аспекты. Рассмотрим основные моменты, на которые стоит обратить внимание при выборе материалов.
1. Столешницы
Столешница – это один из самых важных элементов кухни, который должен быть не только красивым, но и практичным. Наиболее популярные материалы для столешниц:
- Ламинат: Доступный и разнообразный по цветам и текстурам. Однако, он менее устойчив к влаге и механическим повреждениям.
- Дерево: Придаёт кухне уют и тепло, но требует регулярного ухода и защиты от влаги.
- Камень: Гранит или мрамор – долговечные и устойчивые к повреждениям, но могут быть дорогими.
- Композитные материалы: Сочетают в себе преимущества камня и дерева, предлагая широкий выбор дизайна и текстуры.
2. Фасады кухонных шкафов
Фасады определяют внешний вид кухни и могут быть выполнены из различных материалов:
- МДФ: Обрабатываемый и покрываемый пленкой или краской, этот материал позволяет создавать разнообразные стили и фактуры.
- Дерево: Эстетично и долговечно, но требует ухода и может быть подвержено деформации.
- Пластик: Устойчив к влаге и легко чистится, но может выглядеть менее натурально.
3. Напольное покрытие
Выбор напольного покрытия также важен для создания гармоничного дизайна. Рассмотрим несколько вариантов:
- Керамическая плитка: Устойчивость к влаге и легкость в уходе делают её популярным выбором для кухни.
- Ламинат: Доступен в различных дизайнах, но стоит выбирать влагостойкие варианты.
- Виниловые покрытия: Современные виниловые полы могут имитировать дерево или плитку и легко укладываются.
4. Стены и потолок
Отделка стен и потолка также влияет на общий стиль кухни. Рассмотрите следующие варианты:
- Краска: Легко наносится и позволяет менять цвет по мере необходимости.
- Обои: Специальные обои для кухни могут добавить текстуру и цвет, но должны быть устойчивыми к влаге.
- Плитка: Идеально подходит для зон, подверженных загрязнениям, например, за плитой.
При выборе материалов и отделки для угловой кухни важно учитывать не только их внешний вид, но и функциональность, долговечность и легкость в уходе. Правильный выбор поможет создать комфортное и стильное пространство, которое будет радовать вас на протяжении многих лет.
Вопрос-ответ
Какие инструменты понадобятся для создания чертежа угловой кухни?
Для создания чертежа угловой кухни вам понадобятся: рулетка для измерений, карандаш и линейка для рисования, а также бумага или графический редактор на компьютере для оформления чертежа. Также полезно иметь под рукой уровень, чтобы убедиться, что все линии и углы правильные.
Как правильно измерить пространство для угловой кухни?
Для точного измерения пространства начните с определения длины и ширины стен, на которых будет располагаться кухня. Измерьте расстояние от угла до окон, дверей и других препятствий. Не забудьте учесть высоту потолков и расположение электропроводки и водопроводных труб, чтобы избежать проблем при установке мебели.
Как учесть размеры мебели при создании чертежа?
При создании чертежа учитывайте стандартные размеры кухонной мебели: высота столешницы обычно составляет 85-90 см, глубина шкафов — 60 см, а ширина — от 40 до 120 см в зависимости от типа мебели. Рекомендуется также оставить пространство для открывания дверей и ящиков, а также проходы между элементами кухни не менее 90 см для удобства передвижения.
Советы
СОВЕТ №1
Перед началом черчения угловой кухни, тщательно измерьте пространство, где будет располагаться кухня. Используйте рулетку и записывайте размеры всех стен, окон и дверей, чтобы избежать ошибок при создании чертежа.
СОВЕТ №2
Определите функциональные зоны вашей кухни: рабочую, обеденную и зону для хранения. Это поможет вам правильно расположить мебель и технику, а также учесть все необходимые размеры в чертеже.
СОВЕТ №3
Используйте графическую программу или специальные приложения для создания чертежей, чтобы упростить процесс. Это позволит вам легко вносить изменения и экспериментировать с различными планировками без необходимости перерисовывать все заново.
СОВЕТ №4
Не забывайте о правилах эргономики: расстояние между мойкой, плитой и холодильником должно быть оптимальным для удобства работы. Убедитесь, что все элементы кухни расположены так, чтобы минимизировать лишние движения.






